Ihre Chance: Bezugsfreie 3-Zimmer - zentral in Berlin-Mahlsdorf!

Etage:
2. OG

Objektinformationen

Wohnfläche ca.:
77,00 m²
Zimmer:
3,0

Verwaltungsdaten

Externe Nummer
6446

Ausstattung

Zentralheizung
Gasbefeuerung

Zustand

Baujahr:
1997
Neubau
Verkaufsstatus:
verkauft

Energiepass

Energieausweis Energieausweis
Energiepass Art:
Verbrauch
gültig bis:
2028-09-03
Verbrauchkennwert:
126.60 kWh/(m²a)
Primärenergieträger:
GAS
Energieeffizienzklasse:
D
Jahrgang:
2014
Gebäudeart:
wohn

Verwaltung

Ihr Ansprechpartner

Herr
Marcel Pohl
Diese E-Mail-Adresse ist vor Spambots geschützt! Zur Anzeige muss JavaScript eingeschaltet sein.
00493034662022
00491706955855
Berlin-Color-Immobilien Meyer GmbH
Augsburger Straße 33
10789 Berlin
Deutschland
E-Mail (zentral)
Diese E-Mail-Adresse ist vor Spambots geschützt! Zur Anzeige muss JavaScript eingeschaltet sein.
Telefon
00493034662022
Fax
00493036430458
Position
Immobilienberater
Briefanrede
Sehr geehrter Herr Pohl,
Personennummer
14587

Objektbeschreibung

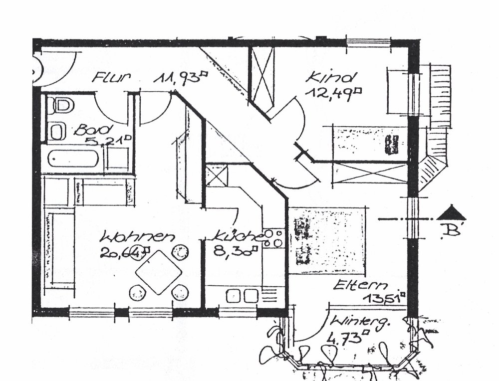
Top-gepflegte drei Zimmer in Berlin-Mahlsdorf

Angefangen mit dem praktischen Flur, welchem Sie Ihren ganz persönlichen Charme verleihen können, bietet diese Wohnung mit ihrem raffinierten Grundriss noch einige Besonderheiten.

Die großzügige, geräumige Einbauküche, welche direkt vom Wohnzimmer begehbar ist, lädt zum gemütlichen Kochen und Ausprobieren neuer Rezepte ein.

Im über 20 Quadratmeter großen, hellen Wohnzimmer können Sie mit Freunden und Ihren frisch zubereiteten Speisen lange Filmabende veranstalten oder die Zeit mit der Familie genießen.

Das Kinderzimmer, welches ebenso wie Bad und Schlafzimmer direkt vom Flur abgeht, kann ebenso optimal als Arbeits- oder Gästezimmer genutzt werden und bietet für alle Möglichkeiten genügend Platz.

Wir würden nicht von einer besonderen Wohnung reden, wenn es kein Highlight gäbe:
Ihr lichtdurchflutetes Schlafzimmer mit riesiger Fensterfront.
Ursprünglich war hier eine Wand eingezogen, sodass ein separater Wintergarten entstand. Diese wurde allerdings zugunsten der Raumgröße und Helligkeit entfernt.

Abgerundet wird die ca. 77 Quadratmeter große Wohnung durch ein Badezimmer mit Badewanne.

Für Rückfragen oder Besichtigungstermine stehen wir Ihnen gern jederzeit zur Verfügung

Lage

Die Wohnung liegt sehr zentral im Herzen von Mahlsdorf. Direkt vor der Tür befindet sich eine Busstation. Die S-Bahn-Station Mahlsdorf ist nur ca. 450 Meter entfernt.

Die offene Bauweise, überwiegend Einfamilienhäuser, verbunden mit großzügigen Grünflächen ist kennzeichnend für dieses Gebiet.
Die nahegelegenen Kaulsdorfer, Hönower Seen sowie die Köpenicker Dammheide bieten Möglichkeiten der Erholung und Entspannung.

Schulen und Supermärkte sind zu Fuß schnell erreichbar.
Weitere Einrichtungen, beispielsweise Restaurants und Ärzte, befinden sich ebenfalls in unmittelbarer Umgegung zur Wohnung

Die Berliner Innenstadt ist in ca. 25 Minuten mit dem öffentlichen Nahverkehr zu erreichen, über die B1/B5 erreicht man den Alexanderplatz in 25 Autominuten.

Bitte bedenken Sie, dass ein Exposé nur einen ersten Eindruck verschaffen kann. Eine Besichtigung wird Ihnen erheblich mehr Aufschluss darüber geben können, ob es wirklich "Ihre" Immobilie ist. Sie werden bei einer Besichtigung erleben, dass Ihnen Dinge auffallen, über die Ihnen ein Exposé nie hätte Aufschluss geben können. Grundsätzlich ermutigen wir Sie, Objekte zu besichtigen.

Ausstattung

+ ab sofort bezugsfrei
+ 77 Quadratmeter verteilt auf drei hellen Zimmern
+ praktischer Grundriss
+ 7 m² komplett abgeschlossener Keller
+ gepflegtes Gemeinschaftseigentum
+ Stellplatz vor der Tür anmietbar
+ zentrale Lage von Mahlsdorf (Berlin-Hellersdorf)
+ 16 Wohneinheiten in der Wohnungseigentümergemeinschaft
+ 33.910,99 € Instandhaltunsrücklage der WEG

sonstige Angaben

Der Zwischenverkauf bleibt vorbehalten. Die Informationen stammen vom Verkäufer bzw. Eigentümer; es wird keine Haftung übernommen. Das Exposé dient lediglich als Vorinformation, Rechtsgrundlage ist allein der notariell beurkundete Kaufvertrag. Das Angebot ist seitens des Käufers provisionspflichtig und zahlbar bei Beurkundung des Kaufvertrages. Eine Weitergabe des Angebotes an Dritte und jegliche Veröffentlichung bedarf unserer Zustimmung. Quelle Kartenmaterial: „©Open StreetMap-Mitwirkende“. Der Eigentümer wurde zur Vorlage des Energieausweises aufgefordert.